Ссылки для упрощенного доступа

Власти Казани отстояли площадь Свободы


Властям Казани сегодня удалось отстоять возможность отказывать активистам в согласовании протестных акций на площади Свободы. С заявлением в суд о незаконности действий чиновников обратились противники строительства мусоросжигательного завода (МСЗ), которые намеревались 3 февраля провести митинг с целью "предотвратить строительство МСЗ в селе Осиново Зеленодольского района РТ"​. Вахитовский районный суд Казани пришел к выводу, что власти республиканской столицы имели право отказать активистам в согласовании митинга, однако признал незаконными действия чиновников, выразившиеся в отказе предоставления альтернативного варианта для проведения акции. Противники строительства МСЗ уверены: на площади Свободы митинговать можно, а действия властей нарушают их конституционное право на свободу собраний.

Третьего февраля противники строительства мусоросжигательного завода (МСЗ) планировали на площади Свободы провести митинг с целью "предотвратить строительство МСЗ в селе Осиново Зеленодольского района РТ". Власти Казани не согласовали акцию, сославшись на то, что на заявленной организаторами площадке запрещено проведение мероприятия. Руководитель аппарата исполкома Казани Евгений Варакин напомнил, что согласно республиканскому закону о митингах, "запрещается проведение собраний, митингов, шествий, демонстраций в следующих местах: расположенных ближе 50 метров от зданий, занимаемых органами государственной власти, прокуратуры, консульств, образовательными, медицинскими организациями, и культовых сооружений". Чиновник подчеркнул, что ближе 50 метров от заявленной площадки находится учебное здание КНИТУ-КАИ. Альтернативных вариантов для проведения митинга власти Казани не предложили.

Напомним, акции протеста на площади Свободы не проводятся уже многие годы — власти Казани запрещают их под различными предлогами. Последние крупные митинги на площади прошли в 2011 году — весной там прошел крупнейший митинг рыболовов, а в конце года — несанкционированная акция за честные выборы, по итогам которой задержали около ста человек.

Активистка против строительства МСЗ Елена Изотова обратилась в Вахитовский районный суд Казани с исковым заявлением, в котором заявила: ответ исполкома "является произвольным и незаконным" и нарушает ее права. Изотова подчеркнула, что власти Казани "создают препятствия к осуществлению права на свободу собраний, тем самым не позволяя организатору организовать и провести публичное мероприятие".

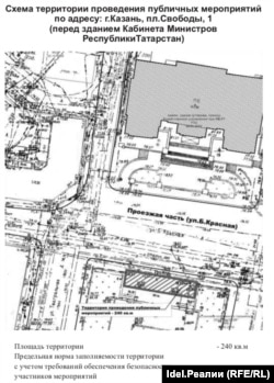
Активистка напомнила, что еще в апреле 2012 года исполком Казани принял постановление "Об установлении норм предельной заполняемости территории в месте проведения публичного мероприятия". Согласно документу, напротив здания Кабинета Министров РТ — через дорогу — имеется площадка площадью 240 кв.м. Предельная норма ее заполняемости — 57 человек. Именно такое количество участников акции протеста указала Изотова в своем уведомлении о проведении митинга.

Кроме того, к исковому заявлению Изотова приложила распечатку с сервиса "Яндекс-Карты", согласно данным которого расстояние до учебного здания КНИТУ-КАИ составляет 50,2 метра.

— Локализация мероприятия и обозначение его границ не представляют собой каких либо трудностей. Обычно такая задача решается путем выставления временных заграждений сотрудниками полиции. Проведение публичного мероприятия является возможным", — указала в исковом заявлении Елена Изотова.

По ее мнению, исполком Казани "вынес неправомерный отказ на основании неверных предположений о нарушении требований законодательства", "уклоняется от согласования заявленного организатором публичного мероприятия", а также "создает препятствия к осуществлению права на свободу собраний".

Изотова просила суд признать отказ исполкома в согласовании митинга незаконным и обязать его "не препятствовать проведению публичного мероприятия в форме митинга в Казани на площади Свободы перед зданием Кабинета Министров РТ".

Активисты планировали провести митинг на этой площадке
Активисты планировали провести митинг на этой площадке

В начале сегодняшнего заседания судья Артур Галиуллин предложил сторонам мирно урегулировать спор — истец и ответчик отказались.

Представитель Изотовой — юрист Айрат Матыгуллин — в своем выступлении подчеркнул: раз исполком Казани принял постановление "Об установлении норм предельной заполняемости территории в месте проведения публичного мероприятия" и указал территорию напротив Кабмина РТ, следовательно, на этой площадке разрешено проводить митинги.

— Там уже проводились мероприятия и никаких проблем не возникало. До ближайших зданий — КНИТУ-КАИ, Кабмина РТ, Конституционного суда РТ — больше 50 метров. Единственным вариантом для исполкома было не запрещать акцию, а предложить иное время и место ее проведения. Но раз эта площадка, согласно постановлению исполкома, не подпадает под 50-метровый запрет, значит, запрет незаконен. Сквер огромный, и акцию можно было провести в другом месте — около памятника Ленину или ближе к БКЗ им.Сайдашева. Исполком Казани просто препятствует реализации конституционного права на проведение мероприятия, — заявил Айрат Матыгуллин.

Юрист исполкома Казани Александр Токмаков просил суд отказать в удовлетворении искового заявления. Он напомнил, что на указанной организаторами площадке, действительно, проводились публичные мероприятия, но не митинги. По словам Токмакова, республиканский закон о митингах в части 50-метрового запрета не распространяется на пикеты, которые на площади Свободы и проводились.

Представленная юристом исполкома распечатка с "Яндекс.Карт"
Представленная юристом исполкома распечатка с "Яндекс.Карт"

Токмаков ходатайствовал о приобщении к материалам дела распечатки с сервиса "Яндекс.Карты". На ней видно, что расстояние до здания КНИТУ-КАИ составляет 44,8 метра. Разница с данными активистов обусловлена тем, что исполком Казани просчитывал расстояние до образовательного учреждения, взяв в расчет крайнюю точку площадки.

— Таким образом, часть территории попадает под запрет проведения на ней публичных мероприятий в форме митинга, а следовательно, проведение в заявленном месте митинга в количестве участников 57 человек приведет к нарушению действующего законодательства, — отметил юрист исполкома.

Елена Изотова
Елена Изотова

Александр Токмаков также пояснил, почему исполком Казани не предложил организаторам альтернативный вариант для проведения акции. Юрист сослался на постановление пленума Верховного суда РФ от 26.06.2018, согласно которому "при отказе в согласовании проведения публичного мероприятия по мотиву того, что оно заявлено к проведению в месте, в котором в соответствии с законом о публичных мероприятиях или законом субъекта РФ его проведение запрещается, орган публичной власти вправе предложить альтернативное место". Токмаков сделал акцент на праве, а не обязанности чиновников.

Представитель истца Айрат Матыгуллин подчеркнул, что статья 12 федерального закона о митингах предусматривает "обязанность" чиновников представить "обоснованное предложение" об изменении места или времени публичного мероприятия. По словам Матыгуллина, исполком Казани мог предложить организатору провести митинг в другой части сквера на площади Свободы. Александр Токмаков парировал тем, что Елена Изотова указала в своем уведомлении конкретную площадку.

Судья Артур Галиуллин
Судья Артур Галиуллин

​Судья Артур Галиуллин принял решение удовлетворить иск Елены Изотовой частично. Он признал незаконным ответ исполкома "по не предложению организатору публичного мероприятия иного места и времени, позволяющее провести указанное мероприятие". "В удовлетворении остальной части административного искового заявления отказать", — сказал Галиуллин.

— Можно считать, что мы сегодня выиграли, — прокомментировала решение суда Елена Изотова. Мы не будем подавать апелляционную жалобу, но по-прежнему уверены, что митинги на площади Свободы проводить разрешено.

За несколько дней до судебного процесса стало известно, что митинг в рамках общероссийской акции "Россия — не помойка" пройдет 3 февраля в поселке Осиново. Власти его согласовали.

Подписывайтесь на наш канал в Telegram. Говорим о том, о чем другие вынуждены молчать.

XS
SM
MD
LG